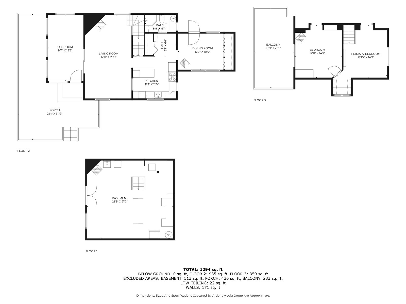
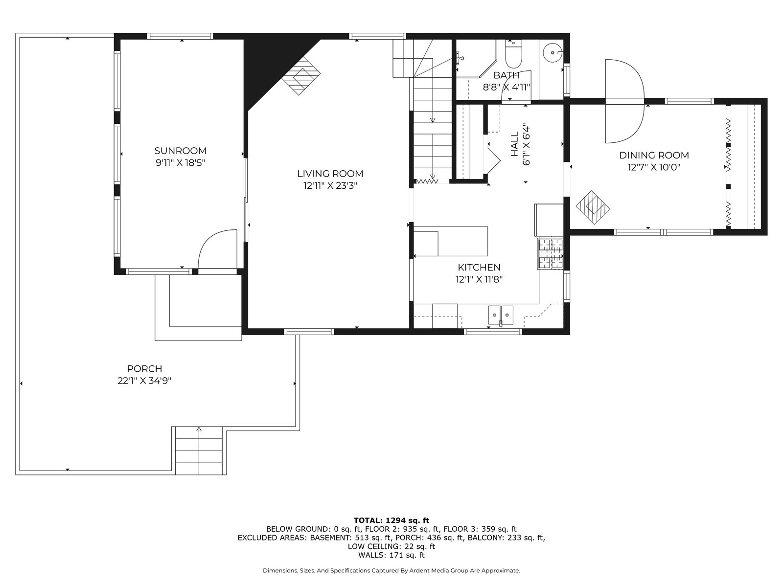
Welcome to 1016 Chemin du Lac Jim a rare opportunity to own nearly 2 acres of pristine waterfront on beautiful Lac Jim. This charming property features a spacious 2 bedroom, 1 bathroom cottage offering over 1,294 sq. ft. of comfortable living space. Enjoy a generous 20' x 24' garage, a large porch, and an expansive balcony perfect for soaking in the peaceful lake views. This ideal lakeside retreat, perfect for relaxing weekends, outdoor adventures, or making lifelong memories by the water.
Bienvenue au 1016, chemin du Lac Jim, une occasion rare de devenir propriétaire de près de 2 acres de terrain en bord de l’eau sur le magnifique lac Jim.Cette charmante propriété ...
